香川県高松市塩江町のマンション(売買)マンション【レイクサイド塩江マンション】(aI000207)の詳細情報です。

高松市塩江町 マンション 1LDK

おすすめPoint

お部屋で24時間、奥ノ湯源泉100%の温泉利用できます。
北東向き角部屋にて、涼しく夏を過ごせます。
別宅、趣味部屋に最適!居住も可能です。

  • レイクサイド塩江マンション
  • 物件番号:aI000207
  • 香川県高松市塩江町上西乙1151-14
  • 価格 130.0万円
専有面積47.57m2 バルコニー面積18.88m2 管理費14,500円
修繕積立金2,300円 駐車場 築年月昭和63年3月
交通ことでんバス高松~塩江線+コミュニティバス利用

画像

画像

物件概要

所在地 香川県高松市塩江町上西乙1151-14
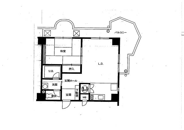
間取り詳細 和6畳.LDK14畳 構造 RC造6階/9階建
学校 ことでんバス高松~塩江線+コミュニティバス利用 委任方式 一般
管理方式 一部委託 管理人 日勤
設備条件 エレベーター、バス・トイレ別、衛星放送、角部屋、駐車場、防犯カメラ
取引形態 仲介 引渡日 相談
情報更新日 2026/01/06 情報有効期限 2026/03/31

物件所在地

取り扱い不動産会社

(有)フォーチュン

(有)フォーチュン

TEL:087-841-6857

営業時間:09:00~18:00
定休日:年末年始・夏期

住所:高松市屋島西町1949-7

会社詳細

(有)フォーチュンの他の物件

(有)フォーチュンの他の物件
  • 価格 150.0万円
  • 売マンション
  • 高松市塩江町上西乙1151-14
  • 1LDK

詳細を見る

(有)フォーチュンの他の物件
  • 価格 50.0万円
  • 売マンション
  • 高松市塩江町上西乙1151-14
  • 1R

詳細を見る

(有)フォーチュンの他の物件
  • 価格 130.0万円
  • 売マンション
  • 高松市塩江町上西乙1151-14
  • 1LDK

詳細を見る

この物件に似た物件

この物件に似た物件
  • 価格 150.0万円
  • 売マンション
  • 高松市塩江町上西乙1151-14
  • 1LDK

詳細を見る

この物件に似た物件
  • 価格 130.0万円
  • 売マンション
  • 高松市塩江町上西乙1151-14
  • 1LDK

詳細を見る

この物件に似た物件
  • 価格 50.0万円
  • 売マンション
  • 高松市塩江町上西乙1151-14
  • 1R

詳細を見る