香川県高松市中央町の駐車場駐車場【廣昌寺第一駐車場(普通車)】(MK052907)の詳細情報です。

高松市中央町 駐車場

おすすめPoint

英明高校前、普通車5ナンバー用。
駐輪場あり。

  • 廣昌寺第一駐車場(普通車)
  • 物件番号:MK052907
  • 香川県高松市中央町6-18
  • 賃料 1.5万円
敷金1ヶ月 礼金0ヶ月 交通最寄り駅:JR高徳線 栗林公園北口駅 徒歩7分
-

画像

画像

画像

物件概要

所在地 香川県高松市中央町6-18
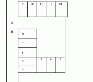
設備条件 廣昌寺(こうしょうじ)第一駐車場。普通車用 (No.6~8、No.12)大型車不可。 駐輪場あります。 空区画No.6(1月14日~大型車不可)
入庫日 -- 取引形態 仲介
情報更新日 2025/12/03 情報有効期限 2024/12/08

物件所在地

取り扱い不動産会社

岡崎産業(株)

岡崎産業(株)

TEL:087-834-5454

営業時間:09:00~17:00
定休日:土・日・祝(ご連絡頂ければ対応致します)

住所:高松市中央町20番15号

会社詳細

岡崎産業(株)の他の物件

岡崎産業(株)の他の物件
  • 賃料 3.8万円
  • コーポ
  • 高松市伏石町2118-7
  • 1K

詳細を見る

岡崎産業(株)の他の物件
  • 賃料 7.0万円
  • マンション
  • 高松市藤塚町1-13-9
  • 1LDK

詳細を見る

岡崎産業(株)の他の物件
  • 賃料 3.2万円
  • コーポ
  • 高松市中野町3-16
  • 1K

詳細を見る

岡崎産業(株)の他の物件
  • 賃料 8.0万円
  • マンション
  • 高松市太田下町1804
  • 4LDK

詳細を見る

この物件に似た物件

この物件に似た物件
  • 賃料 1.0万円
  • 駐車場
  • 高松市中野町21-12

詳細を見る

この物件に似た物件
  • 賃料 0.9万円
  • 駐車場
  • 高松市中野町1-25

詳細を見る

この物件に似た物件
  • 賃料 0.5万円
  • 駐車場
  • 高松市伏石町2111-13

詳細を見る

この物件に似た物件
  • 賃料 1.2万円
  • 駐車場
  • 高松市中央町6-18

詳細を見る